Solide Substanz zum Ausbauen
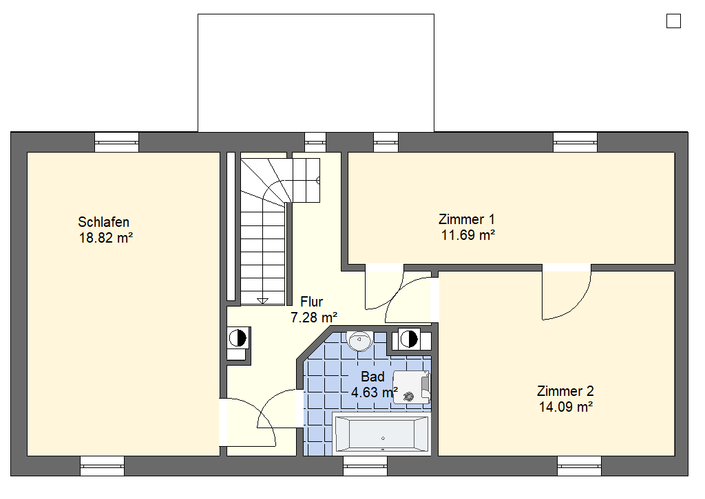
-Zum Verkauf steht ein zweigeschossiges Einfamilienhaus mit Ausbaureserve im Dachgeschoß mit ca 135 m² Wohnfläche und einer Grundstücksgröße von 653 m²
- abgeschlossener Hof, Nebengelass, Garage und Garten
- der Ursprung des Gebäudes wird auf Anfang 1900 geschätzt
- Erweiterungen/Anbau erfolgten wahrscheinlich ab in den 60zigern
- im EG 60 cm starke Lehmwände, OG und Anbau ca 30 cm Massiv
- überwiegend Kunststofffenster 2fach Verglasung
- die Heizung erfolgte über einzelne Ölöfen
- das Grundstück ist erschlossen mit Wasser, Abwasser, Strom und Telekom
Das Grundstück liegt im Ortsteil Gütz der Stadt Landsberg in ruhiger Siedlungslage.
In unmittelbarer Nähe befindet sich die Kulturkirche Gütz.
Energieausweistyp - Bedarfsausweis - Gebäudetyp Wohngebäude
Baujahr laut Energieausweis1900 - Wesentliche Energieträger Heizöl
Endenergiebedarf 151 kWh/(m²·a) Energieeffizienzklasse E
Grundstücksfläche: 653 m²
Wohn/Nutzfläche: ca 135/100 m²
Preis: 125.000 €
Käufercourtage: 3 % zzgl. MwSt







